Suzuki Ritz (2009-2016) – caixa de fusíveis

Diagramas de fusíveis e caixas de relé – Suzuki(Maruti) Ritz

Aplica-se a veículos fabricados ao longo dos anos:

2009, 2010, 2011, 2012, 2013, 2014, 2015, 2016.

Diagrama da caixa de fusíveis do painel de instrumentos

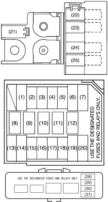
A caixa de fusíveis está localizada debaixo do painel de instrumentos do lado do condutor. Empurrar em ambas as extremidades e levantar a tampa para a remover. Para remover o fusível, utilizar o puxador de fusíveis localizado na caixa de fusíveis.

Suzuki Ritz (2009-2016) - caixa de fusíveis

Número Amps [A] Descrição
1
2 15 Bobina de ignição
3 10 Luz de reserva
4 10 Contador
5 15 Acessórios 1
6 15 Acessórios 2
7 30 Fornecimento de janelas
8 15 Lava-janelas
9 10 IG1 SIG
10 15 Airbag
11 10 Sistema de prevenção de bloqueio das rodas
12 10 Luz traseira
13
14 20 Fechadura da porta
15
16 10 SIG ST
17 10 Imobilizador
18 10 IG2 SIG
19 15 Luz de nevoeiro traseiro
20 15 Rádio
21 20 Nevoeiro traseiro
22 15 Buzina e luzes de perigo
23
24

Caixa de fusíveis no compartimento do motor

O fusível principal, os fusíveis primários e alguns fusíveis individuais estão localizados no compartimento do motor. Se o fusível principal explodir, nenhum componente eléctrico irá funcionar. Se o fusível principal explodir, nenhum componente eléctrico no grupo de carga correspondente funcionará.

Veja também:  Suzuki Ertiga (2012-2018) - caixa de fusíveis
Diagrama (gasolina)

Suzuki Ritz (2009-2016) - caixa de fusíveis

Número Amps [A] Descrição
1 80 Toda a carga eléctrica
2 50 Abastecimento de janelas, ignição.

Limpador de pára-brisas, arrancador

3 50 Luz de cauda, desembaçador traseiro, fechadura da porta, luzes/chifres de perigo, cúpula
14 30 Rastilho de aquecedor
15 15 Injecção de combustível
16 10 Compressor de ar
17 15 Fornecimento do controlador A/T
18 15 Interruptor de luz de travagem
19 30 Módulo de controlo ABS
20 30 Motor de arranque
21
22 50 Módulo de controlo da direcção assistida
23 30 Interruptor de ignição
24 30 Ventilador do radiador
25
26 30 Módulo de controlo ABS
27
28
29 15 Luz de nevoeiro frontal
30 15 Farol (esquerda)
31 15 Farol (à direita)
32 80 Aquecedor, compressor de ar, direcção assistida
33 80 Ventilador do radiador, Farol de nevoeiro dianteiro, Farol
Estafeta
4 Relé de ventilador do radiador #1
5 Relé do ventilador do radiador nº 2
6 Relé de ventilador de radiador nº 3
7 Relé motor de arranque
8 Relé principal
9
10 Relé de luz de nevoeiro frontal
11 Relé de bomba de combustível
12 Relé compressor de ar
13 Relé A/T
Veja também:  Suzuki Grand Vitara (2008) - caixa de fusíveis
Diagrama (Diesel)

Suzuki Ritz (2009-2016) - caixa de fusíveis

Número Amps [A] Descrição
1 30 Arranque do motor
2 10 Compressor de ar
3 15 Bomba de combustível
4 30 FI
5 30 Aquecedor
6 30 Ventilador do radiador
7 50 Módulo de controlo da direcção assistida
13 30 Módulo de controlo ABS
14 30 Módulo de controlo ABS
15 15 Interruptor de luz de travagem
16 15 Farol (à direita)
17 15 Farol (esquerda)
18 15 Luz de nevoeiro frontal
19 30 Interruptor de ignição
20 50 Fornecimento de energia à janela. Ignição, limpa pára-brisas, arrancador
21 100 Todas as cargas eléctricas
22 100 ABS, MIL, nevoeiro frontal
23 100 EPS, ventilador do radiador. Aquecedor, arrancador
24 50 Lâmpada
25 100 Glow
26 30
27 30
28
29 20 Fusível FI
30
31 10 FI3
Estafeta
8 Relé de ventilador do radiador #1
9 Relé do ventilador do radiador nº 2
10 Relé de ventilador de radiador nº 3
11 Relé compressor de ar
12 Relé motor de arranque
Veja também:  Suzuki Vitara e Escudo (2016-2022) - caixa de fusíveis

Clara Serrano

Quão útil foi este post?

Clique numa estrela para o avaliar!

Avaliação média 0 / 5. Número de votos: 0

Nenhum voto até agora! Seja o primeiro a avaliar este post.

Sem comentários.

Deixe um comentário

O seu endereço de email não será publicado. Campos obrigatórios marcados com *